Quadrilocale in vendita

Torino, Via parmentola - Aeronautica
€ 235.000
4 locali 4 locali
130 Mq 130 Mq
2 bagni 2 bagni

Quadrilocale in vendita

Torino, Via parmentola - Aeronautica

Descrizione annuncio

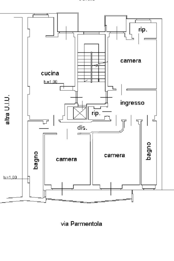
Nel cuore della località Aeronautica a Torino, proponiamo un ampio appartamento di 130 mq, situato al quarto piano di un edificio dotato di ascensore, oggetto di recenti lavori di ristrutturazione, quali: Facciate esterne e cappotto facciata frontespizio. L'appartamento è stato completamente ristrutturato, in quanto è la fusione di due appartamenti, ovvero unico alloggio sul piano. La disposizione interna comprende quattro locali spaziosi e ben strutturati ideali per adattarsi a diverse esigenze familiari. L'appartamento è composto di ingresso living su soggiorno con cucinino, tre camere, doppi servizi, e tre balconi. Dotato di doppia esposizione e doppi ingressi. Completano la proprietà le due cantine di pertinenza. Questa soluzione abitativa rappresenta un'opportunità ideale per chi cerca un'abitazione confortevole e ben collegata al centro città, in una zona tranquilla e ben servita.

Mostra tutto

Nelle vicinanze

Trasporto pubblico Trasporto pubblico
Marche
Marche
560 m
Massaua
Massaua
820 m
stazione di Grugliasco
stazione di Grugliasco
1,1 Km
De Sanctis
De Sanctis
920 m
Brissogne Capolinea
Brissogne Capolinea
1,0 Km
Ricariche auto elettriche Ricariche auto elettriche
Bluetorino Fidia
890 m
Collegno Pastrengo | ENELX
2,7 Km
COLLEGNO PASTRENGO 34/b | ENELX
2,8 Km
Scuole Scuole
Scuole
420 m
Scuola elementare Martin Luther King
550 m
Politecnico di Torino – Sede Alenia
620 m
Scuola Elementare di Stato Rosa Agazzi
640 m
Scuola media Carlo Levi
650 m
Farmacia Farmacia
Gancia Dimitri
120 m
Comunale 5 - Afc
240 m
Farmacia
360 m
Farmacia Parini
470 m
Donato
580 m
Ospedali Ospedali
Ospedale Martini
1,2 Km
Ospedale Martini - Emergency
1,2 Km
Ospedali
1,3 Km
Clinica della Memoria "Giovanni Paolo II"
1,3 Km
LARC
3,0 Km
Supermercati Supermercati
Lidl
120 m
Unes
440 m
CRAI Panda Market
550 m
Prestofresco
750 m
Supermercati
780 m
Negozi Negozi
Pastificio Federico
230 m
Dalla Terra al Cielo
420 m
Negozi
550 m
Delper
710 m
Pesciolino Rosso
770 m
Bar Bar
Marinella
280 m
Bar
400 m
Foodball
640 m
Bar Unico
690 m
Fratelli Martino
770 m
Ristoranti Ristoranti
The Eagle House
540 m
Foglia d'Acero
730 m
Povero felice
730 m
Gustosità
820 m
Riko Sushi
840 m
Mostra tutto

Caratteristiche

Rif.:
61145891
Piano:
4 di 6 con ascensore (Piano alto)
Balconi:
3
Camere da letto:
2
Arredamento:
Assente
Condizionamento:
Centralizzato
Mostra tutto
Prezzo Prezzo
€ 235.000
Rata mutuo Rata mutuo
€ 1.108 / mese
Proponi il tuo prezzoProponi il tuo prezzo

Classe Energetica

D
D
D
D
D
D
D
D
D
EP globale non rinnovabile:
120.33 kW h/m² anno
EP globale rinnovabile:
120.33 kW h/m² anno
EP invernale del fabbricato:
EP estiva del fabbricato:
Anno di costruzione:
1960
Riscaldamento:
Centralizzato
Tipo impianto:
A radiatori
Tipo alimentazione:
Metano

Ti interessa visionare l'immobile?

Fissa un appuntamento  Fissa un appuntamento

Richiedi informazioni

Clicca su Leggi per aprire l'informativa
* Questi campi sono obbligatori

Calcola il tuo mutuo

Semplice e senza impegno
Anticipo

( % )
Mutuo

( % )

pochi semplici passi

inserisci i tuoi dati
Questionario completato
Grazie per aver richiesto un appuntamento senza impegno con un nostro Consulente del Credito e Assicurativo.

Hai inserito correttamente tutti i dati necessari e a breve riceverai una e-mail con un link da convalidare per inviare i tuoi dati.
Affiliato
Immobiliare Aeronautica Sas
Via Vandalino, 112/B 10142 Torino (TO)

Il nostro staff


  • Antonio Mazzone
    Affiliato

  • Federica Laezza
    Coordinatrice
Via Vandalino, 112/B 10142 Torino (TO)
Zona: Pozzo Strada - Aeronautica
Mostra su mappa
Orari: dal Lunedi al Sabato dalle 09:00 alle 12:30 e dalle 15:00 alle 20:00. Sabato chiusura ore 19:00
Affiliato
Immobiliare Aeronautica Sas
Via Vandalino, 112/B 10142 Torino (TO)

2026 Tecnocasa Franchising S.p.A. - P. IVA 08365160152 - Via Monte Bianco 60/A 20089 Rozzano (MI). Ogni agenzia ha un proprio titolare ed è autonoma. Privacy policy | Policy utilizzo | Cookie policy