Attico in vendita

Torino, Via Val Lagarina - Aeronautica
€ 495.000
4 locali 4 locali
160 Mq 160 Mq
2 bagni 2 bagni

Attico in vendita

Torino, Via Val Lagarina - Aeronautica

Descrizione annuncio

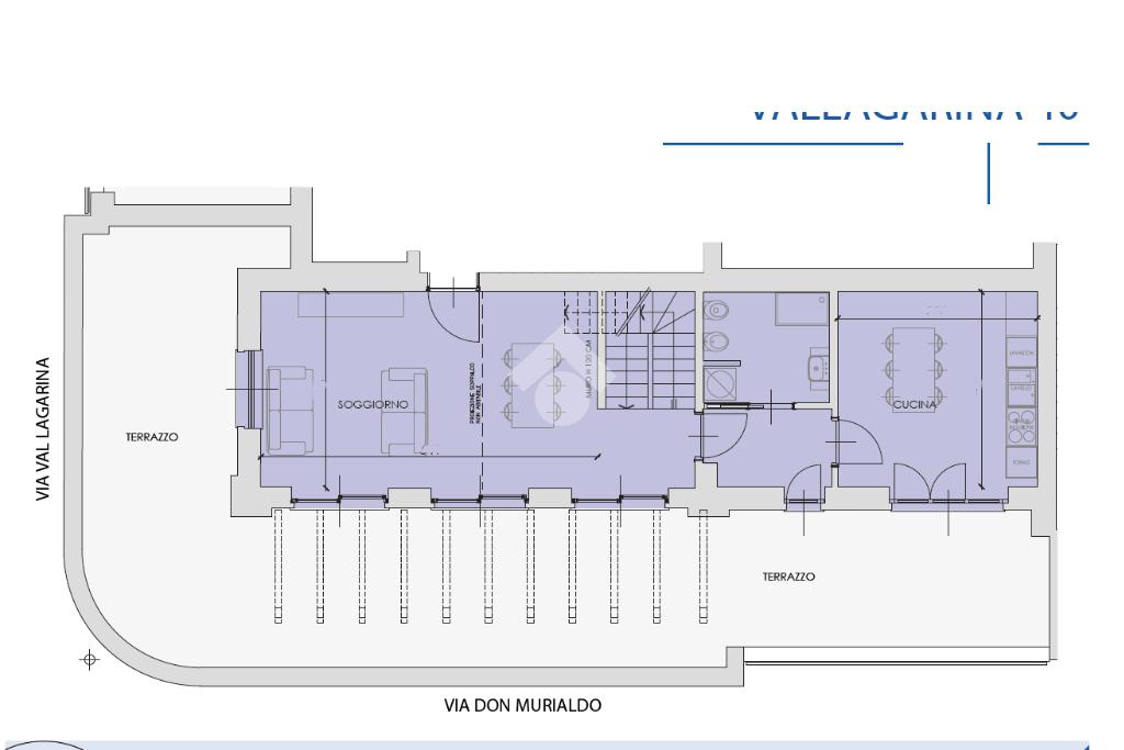
VIA VAL LAGARINA. Nel complesso signorile 'Residence Helios' recentemente ultimato, proponiamo splendido attico unico nel suo genere situato al quinto piano, dotato di ampio terrazzo con vista panoramica sulle colline torinesi. L'edificio è stato progettato con attenzione particolare all'efficienza energetica in classe A4. L'impianto fotovoltaico integrato contribuisce a ridurre i costi energetici. L'isolamento termico delle mura assicura un ambiente interno accogliente e silenzioso, limitando la trasmissione acustica. L'appartamento disposto su due livelli, è composto di ingresso living su ampia sala con porte finestre scorrevoli, dalle quali si accede al terrazzo, la scala nella sala collega una zona soppalcalcata, disimpegno, cucina abitabile e bagno, al piano sottostante collegato da scala interna vi sono 2 camere con accesso ad un balcone e bagno dotato di porta finestra con balcone. L'appartamento è dotato di tecnologie all'avanguardia, tra cui un sistema di video citofono per una maggiore sicurezza, serrande elettriche per una gestione pratica della luce naturale, serramenti in pvc con vetrocamera a doppia stratificazione. Il riscaldamento è a pavimento con pannelli radianti, gestibile separatamente per la zona notte e zona giorno grazie alla presenza di cronotermostati per un controllo efficiente della temperatura. La ventilazione meccanica controllata (VMC) assicura un ricambio d'aria ottimale, mentre la presenza dei climatizzatori garantisce un ambiente confortevole in ogni stagione. Un'opportunità unica per chi cerca una residenza moderna e funzionale in una zona ben dei video fatto con drone nella sezione VIDEO. I RENDER DELL'ANNUNCIO OFFRONO UN'IDEA DI POTENZIALI STILI DI ARREDAMENTO IN FUNZIONE DELLA DISTRIBUZIONE DEGLI SPAZI INTERNI ED ESTERNI.

Mostra tutto

Nelle vicinanze

Trasporto pubblico Trasporto pubblico
Marche
Marche
420 m
Paradiso
Paradiso
620 m
stazione di Grugliasco
stazione di Grugliasco
980 m
stazione di Collegno
stazione di Collegno
2,9 Km
De Sanctis
De Sanctis
1,3 Km
Ricariche auto elettriche Ricariche auto elettriche
Bluetorino Fidia
950 m
Collegno Pastrengo | ENELX
2,4 Km
COLLEGNO PASTRENGO 34/b | ENELX
2,4 Km
Scuole Scuole
Scuole
60 m
Politecnico di Torino – Sede Alenia
290 m
Scuola elementare Martin Luther King
560 m
Scuola media Carlo Levi
700 m
Istituto di istruzione superiore "Carlo Levi"
740 m
Farmacia Farmacia
Donato
180 m
Comunale 5 - Afc
290 m
Gancia Dimitri
430 m
Farmacia Nuova di Grugliasco
650 m
Farmacia
660 m
Ospedali Ospedali
Clinica della Memoria "Giovanni Paolo II"
900 m
Ospedale Martini
1,5 Km
Ospedale Martini - Emergency
1,6 Km
Ospedali
1,6 Km
Supermercati Supermercati
Unes
220 m
Lidl
280 m
Prestofresco
690 m
Il Gigante
710 m
CRAI Panda Market
800 m
Negozi Negozi
Pastificio Federico
460 m
Dalla Terra al Cielo
620 m
Negozi
840 m
Delper
880 m
Pesciolino Rosso
910 m
Bar Bar
Marinella
220 m
Bar
460 m
Bar Unico
670 m
Almarò
730 m
Foodball
750 m
Ristoranti Ristoranti
The Eagle House
140 m
Foglia d'Acero
370 m
Riko Sushi
460 m
La Famosa Pizzeria
630 m
Povero felice
890 m
Mostra tutto

Caratteristiche

Rif.:
61040109
Piano:
5 di 5 con ascensore (Piano attico)
Balconi:
2
Terrazzi:
1
Camere da letto:
3
Arredamento:
Assente
Mostra tutto
Prezzo Prezzo
€ 495.000
Rata mutuo Rata mutuo
€ 2.340 / mese
Proponi il tuo prezzoProponi il tuo prezzo

Classe Energetica

A4
A4
A4
A4
A4
A4
A4
A4
A4
EP globale non rinnovabile:
50.16 kW h/m² anno
EP globale rinnovabile:
50.16 kW h/m² anno
EP invernale del fabbricato:
EP estiva del fabbricato:
Anno di costruzione:
2023
Riscaldamento:
Autonomo
Tipo impianto:
A pavimento
Tipo alimentazione:
Altro

Ti interessa visionare l'immobile?

Fissa un appuntamento  Fissa un appuntamento

Richiedi informazioni

Clicca su Leggi per aprire l'informativa
* Questi campi sono obbligatori

Calcola il tuo mutuo

Semplice e senza impegno
Anticipo

( % )
Mutuo

( % )

pochi semplici passi

inserisci i tuoi dati
Questionario completato
Grazie per aver richiesto un appuntamento senza impegno con un nostro Consulente del Credito e Assicurativo.

Hai inserito correttamente tutti i dati necessari e a breve riceverai una e-mail con un link da convalidare per inviare i tuoi dati.
Affiliato
Immobiliare Aeronautica Sas
Via Vandalino, 112/B 10142 Torino (TO)

Il nostro staff


  • Antonio Mazzone
    Affiliato

  • Federica Laezza
    Coordinatrice
Via Vandalino, 112/B 10142 Torino (TO)
Zona: Pozzo Strada - Aeronautica
Mostra su mappa
Orari: dal Lunedi al Sabato dalle 09:00 alle 12:30 e dalle 15:00 alle 20:00. Sabato chiusura ore 19:00
Affiliato
Immobiliare Aeronautica Sas
Via Vandalino, 112/B 10142 Torino (TO)

2026 Tecnocasa Franchising S.p.A. - P. IVA 08365160152 - Via Monte Bianco 60/A 20089 Rozzano (MI). Ogni agenzia ha un proprio titolare ed è autonoma. Privacy policy | Policy utilizzo | Cookie policy